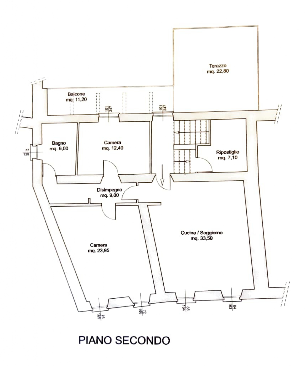
We are pleased to offer this 2 bedroom 1 bathroom apartment with lake view, which forms part of a period house in the Volesio part of Tremezzo, some 600 metres from the lake and amenities, about 7km south of Menaggio and just over the hour to Milan airports. The apartment provides a spacious 110m2 of accommodation on the second floor of this period village house with typical architecture of the area. The entrance leads into the spacious open plan living room with fireplace, fitted kitchen to view and windows with lovely lake views. There is a hallway leading to the sleeping area where you find 1 large bedroom with windows with lake views, the second large bedroom has French doors leading onto a spacious balcony with views over the hamlet and the mountains beyond, and a bathroom. The property also has a storage room, and to the rear, a spacious terrace with lovely panoramic views over the surrounding mountains, a location ideal for external dining, reading, or just relaxing in the beauty and peace of the surroundings. Windows are double glazed and there is methane gas central heating. Although there is no dedicated parking space, there are two large public car parks within easy reach of the property enabling easy access. This is an ideal solution for anyone looking for a main residence or even to provide rental income in one of the most loved areas of Lake Como.
Casa Travella was founded in 1987 when Linda & Pietro Travella saw an opportunity to offer Italian property for sale. At this time there were very few companies that offered any property for sale in Italy. Now years later read some of their story.
The company is fronted by Linda Travella and Casa Travella started selling property on Lake Como, where Pietro was born and Linda has worked and lived. The company were able to offer advice on numerous properties and ongoing help with all aspects of the buying process. If a client wants to restore a property, then Casa Travella can source tradesmen and professionals in the area and help with every aspect of the transaction.
When the BBC were looking for someone to speak on BBC Breakfast News about European property Linda was chosen to appear live on the programme. Other TV and radio programmes followed including Radio 5 Live, and ‘I want that House’ with Mark Simpkins, where Linda appeared in 6 episodes, the last one being a live programme from Florida, where an Italian apartment was given away as a prize. Linda appeared for RTE, Irish TV and for Channel 4‘s ‘A Place in the Sun’, where she accompanied Amanda Lamb along the shores of Lake Como by boat, to show her some of the stunning villas, including the one owned by George Clooney.
The Casa Travella team are always pleased to help when clients want to buy or sell a property in Italy. The office is multilingual with English, Italian and Spanish being spoken.
Linda says: ‘I feel proud that we can offer property for sale in many areas of Italy and we are able to give clients independent and professional advice on areas and types of property to suit their budget and needs.’
The Casa Travella team look forward to helping you buy or sell your Italian home.
Casa Travella selling Italian Dream since 1987




















































