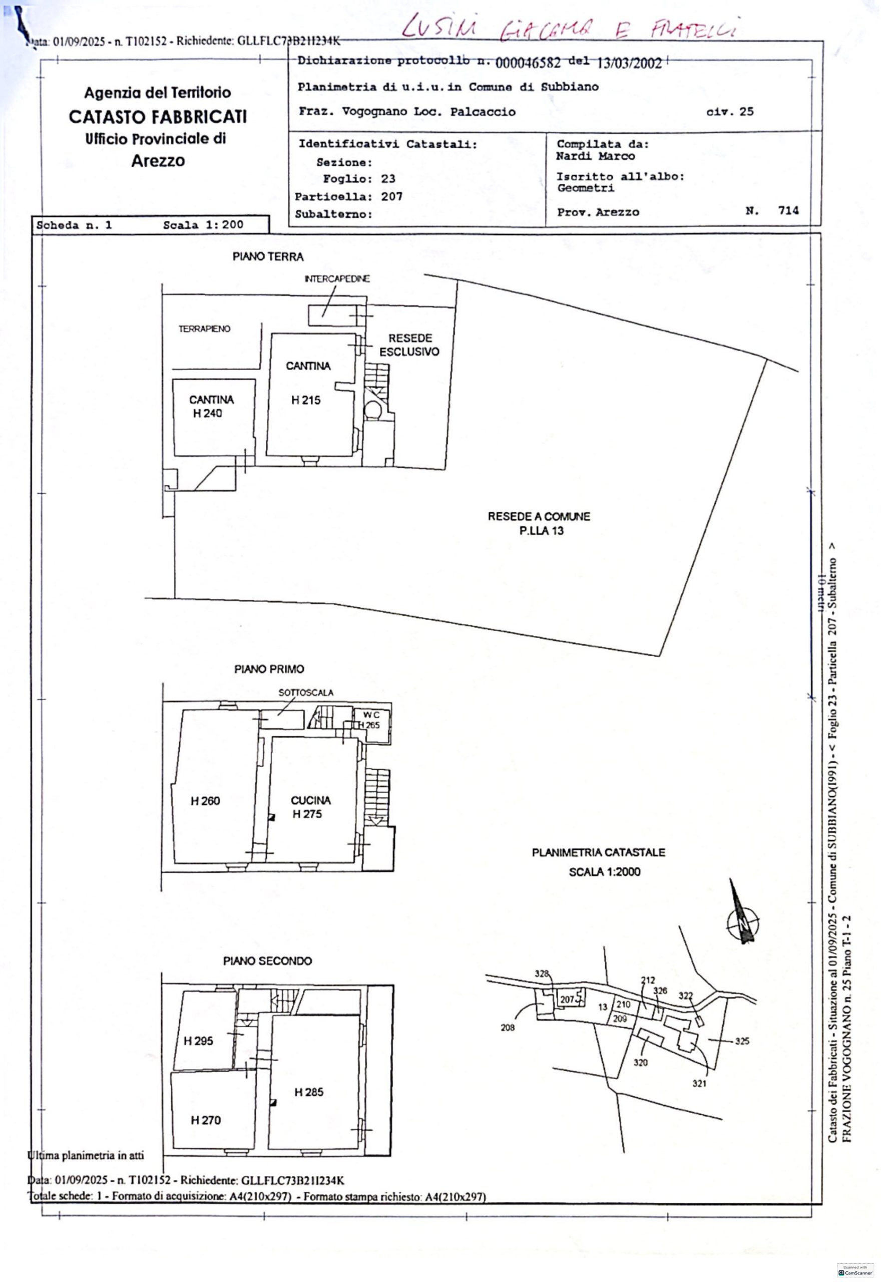
Located in the hamlet of Vogognano, just 7km north of Subbiano with all amenities, we offer for sale this portion of house providing 7 bedrooms and 3 bathrooms, an annexe of old stable, all sitting in over 3.5 acres of land part with olive trees and part arable. The property is actually divided into 3 apartments with independent entrances with one having been renovated and the other two needing some renovation work to be completed. The first apartment over three floors includes 2 rooms used as cantina on the lower level, then a large lounge with fireplace, kitchen and bathroom on the upper level and 3 large bedrooms on the second floor. The second apartment on the second floor consists of a kitchen, living room, 2 bedrooms, bathroom and 2 large storage rooms, plus cantine on the lower ground floor. The third apartment on the first floor includes a lounge, kitchen, large hallway leading to 2 bedrooms and bathroom. The property also benefits from an annexe of an ex-stable, and has 1.5 hectares (3.7 acres) of land, part of which is an olive grove in production and the remainder arable, with ample room to build a swimming pool (subject to planning permission) if desired. The town of Subbiano with all amenities including numerous restaurants, shops and cafes as well as a railway station is just 7km away whilst Bibbiena and Arezzo are about 20km north and south respectively. This is an ideal solution for someone to create either 3 lovely rental properties, or a single B&B or other receptive facility.
Casa Travella was founded in 1987 when Linda & Pietro Travella saw an opportunity to offer Italian property for sale. At this time there were very few companies that offered any property for sale in Italy. Now years later read some of their story.
The company is fronted by Linda Travella and Casa Travella started selling property on Lake Como, where Pietro was born and Linda has worked and lived. The company were able to offer advice on numerous properties and ongoing help with all aspects of the buying process. If a client wants to restore a property, then Casa Travella can source tradesmen and professionals in the area and help with every aspect of the transaction.
When the BBC were looking for someone to speak on BBC Breakfast News about European property Linda was chosen to appear live on the programme. Other TV and radio programmes followed including Radio 5 Live, and ‘I want that House’ with Mark Simpkins, where Linda appeared in 6 episodes, the last one being a live programme from Florida, where an Italian apartment was given away as a prize. Linda appeared for RTE, Irish TV and for Channel 4‘s ‘A Place in the Sun’, where she accompanied Amanda Lamb along the shores of Lake Como by boat, to show her some of the stunning villas, including the one owned by George Clooney.
The Casa Travella team are always pleased to help when clients want to buy or sell a property in Italy. The office is multilingual with English, Italian and Spanish being spoken.
Linda says: ‘I feel proud that we can offer property for sale in many areas of Italy and we are able to give clients independent and professional advice on areas and types of property to suit their budget and needs.’
The Casa Travella team look forward to helping you buy or sell your Italian home.
Casa Travella selling Italian Dream since 1987
A+
A
B
C
D
E
F
G
