This spacious detached 5 bedroom house and barn, sits in over 2½ acres of terraced with magnificent panoramic views over the Serchio valley. The house is located less than one kilometre from the hamlet of Brucciano, 2km from the nearest shop in Molazzana, 5km from Gallicano with all amenities, and 75 minutes to Pisa airport.
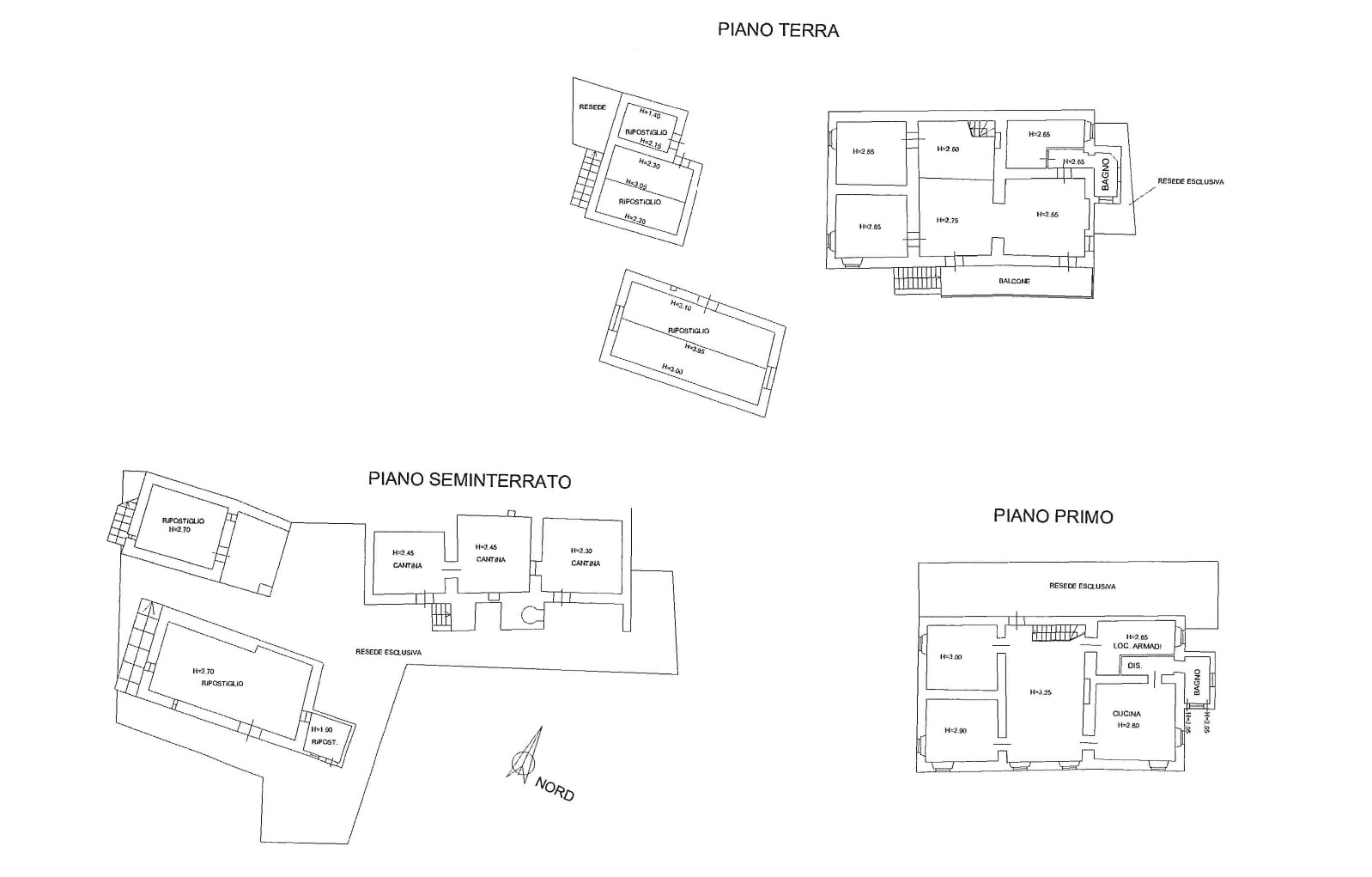
The detached property including cellars is about 300m2 and is spread over 3 floors.
On the ground floor there are two large “cantine”, one of which houses the gas boiler for central heating system.
The main entrance is on the upper floor with a large external terrace which leads into a spacious kitchen with fireplace, large living room, two double bedrooms and bathroom, as well as stairs leading to the second floor. On the second floor there is a further living room with fireplace, second kitchen, two double bedrooms, large single bedroom and second bathroom.
Externally, the property sits in about 11,000m2 (just under 2.72 acres) of terraced land which is accessed by a short private road. There is also a barn over two floors which is in need of renovation.
The property, which dates back to around 1700 also benefits from gas central heating, features beamed ceilings, has ample parking and has a large terrace/patio with barbecue and wood burning stove.
There are four restaurants within a 10-minute drive of the property, the nearest shop is in the village of Molazzana just 2km away, and all amenities are available at Gallicano.
A very spacious property located in a dominant position with really spectacular views over the Serchio valley with possibilities to create further accommodation if desired.
Energy Classification – “G”
Price Reduced to 210.000 Euros
Casa Travella Ltd.
A+
A
B
C
D
E
F
G















