This lovely 4 bedroom detached house with beautiful views over the surrounding countryside and valleys with swimming pool, is located in the village of Licciana Nardi with amenities, some 8km from Aulla, and about 45 minutes from the sea and nearest beaches.
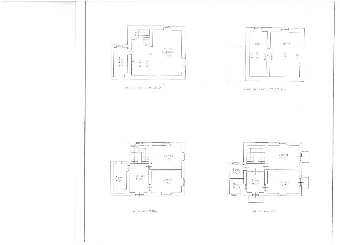
The detached house provides about 300m2 of accommodation over 3 floors and is laid out as follows:
Ground floor: Double door entrance leads to a large open plan living area with dining room with extending dining table to the side. A further lounge area with burner sits in an open fireplace leads to TV area, DVD player and curved divan which opens to a single bed. The fully fitted kitchen has a built-in freezer, electric oven and 5 burner gas hob, with work surface in marble and double sink. All utensils are also included. This in turn leads to a hallway and bathroom.
First Floor: Landing with Master double bedroom with super views, second bedroom with double divan bed and single cot bed and fully tiled bathroom with bath, shower and washing machine.
Second floor: Stairs lead to the next floor with twin bedded room again with lovely views and a bathroom with shower, toilet and wash hand basin. There is a further 4th bedroom with twin beds and double aspect views with a small balcony. The bedroom also has a private bathroom with shower.
Externally, the property sits in a garden of some 1000m2 which includes an arbour and seating for outside dining as well as a pizza oven. To the side of the house there is a swimming pool with solarium ideal for relaxing in the summer months.
This is a delightful and spacious house, close to amenities and with its location in the valley, keeping it cool in the summer months.
The property is perfect for personal use, or if desired excellent for generating income.
Energy Classification – “F”
Price 299.000 Euros
Casa Travella Ltd.
A+
A
B
C
D
E
F
G
