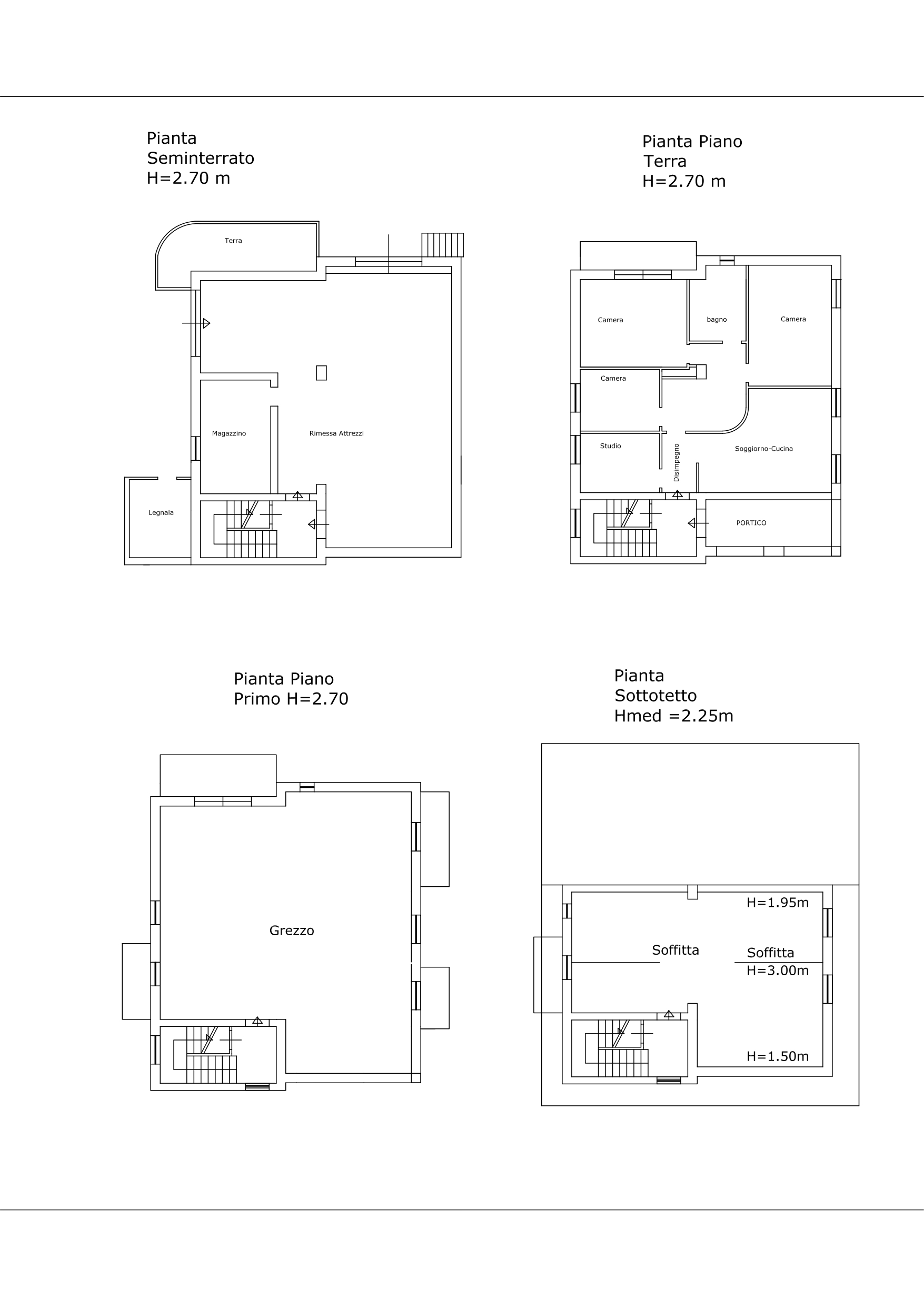
We are pleased to offer this spacious detached house with room to create a 9 bedroom 4 bathroom property with sea views, sitting in over 1.5 acres of garden, located just 5km from the centre of Cupra Marittima and the sea, and ideal for use as tourist property or for multiple families. The property provides about 550m2 of accommodation over 4 floors. The raised ground floor is habitable and ready to move in to, and is accessed across a covered portico leading into an entrance hall, large open plan living area with kitchen to view, lounge/study, 3 bedrooms and bathroom, with one of the bedrooms having a balcony with lovely sea views. The first and loft areas are currently “al Grezzo” as large areas, and ready to be tailored and finished to own requirements, with the first floor also having a large balcony with lovely views right to the sea. The lower ground floor of 150m2 has been designated as a garage/storage room and taverna, with external wood store, is also “al Grezzo” and ready to be tailored to your own requirements. Externally the property sits in 7,000m2 (about 1.729 acres) of garden with a very slight slope with ample room for parking. The house is in a dominant position, has super views right to the sea, is only 5km from all amenities and the sea at Cupra Marittima and 7km from the centre of Grottamare. This is an ideal investment to complete the development and create a spacious holiday property for rental, B&B or other tourist accommodation.
Casa Travella was founded in 1987 when Linda & Pietro Travella saw an opportunity to offer Italian property for sale. At this time there were very few companies that offered any property for sale in Italy. Now years later read some of their story.
The company is fronted by Linda Travella and Casa Travella started selling property on Lake Como, where Pietro was born and Linda has worked and lived. The company were able to offer advice on numerous properties and ongoing help with all aspects of the buying process. If a client wants to restore a property, then Casa Travella can source tradesmen and professionals in the area and help with every aspect of the transaction.
When the BBC were looking for someone to speak on BBC Breakfast News about European property Linda was chosen to appear live on the programme. Other TV and radio programmes followed including Radio 5 Live, and ‘I want that House’ with Mark Simpkins, where Linda appeared in 6 episodes, the last one being a live programme from Florida, where an Italian apartment was given away as a prize. Linda appeared for RTE, Irish TV and for Channel 4‘s ‘A Place in the Sun’, where she accompanied Amanda Lamb along the shores of Lake Como by boat, to show her some of the stunning villas, including the one owned by George Clooney.
The Casa Travella team are always pleased to help when clients want to buy or sell a property in Italy. The office is multilingual with English, Italian and Spanish being spoken.
Linda says: ‘I feel proud that we can offer property for sale in many areas of Italy and we are able to give clients independent and professional advice on areas and types of property to suit their budget and needs.’
The Casa Travella team look forward to helping you buy or sell your Italian home.
Casa Travella selling Italian Dream since 1987
A+
A
B
C
D
E
F
G
