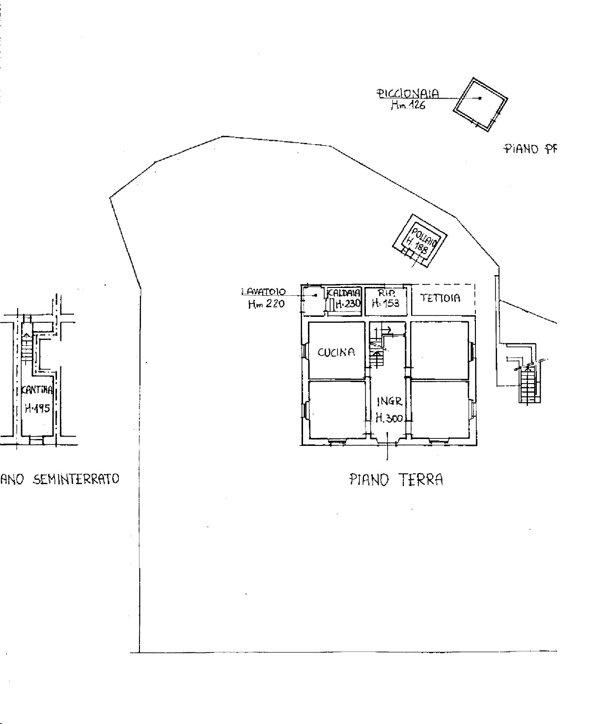
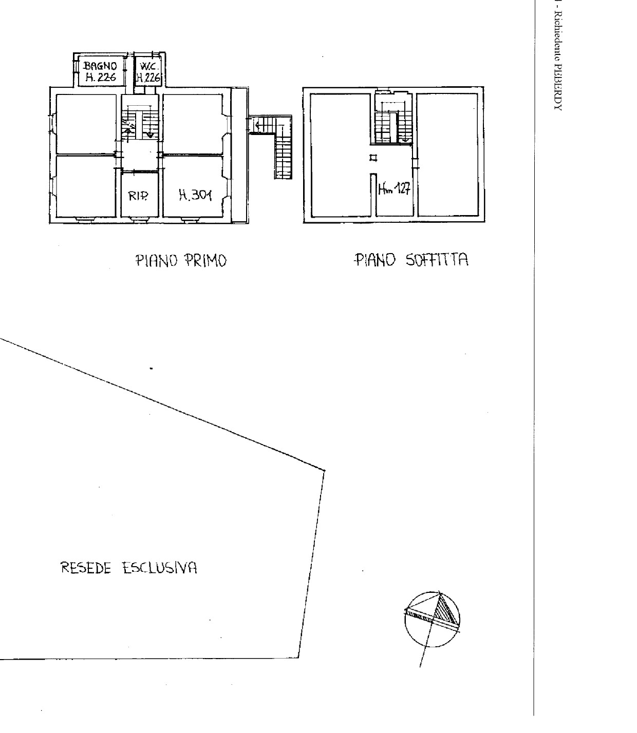
We are pleased to offer for sale this beautiful 5 bedroom detached villa with delightful panoramic views in a quiet setting in the hamlet of Giardinetto, close to the main road from Bagni di Lucca to Abetone, less than 7km from Bagni di Lucca, 25km from Abetone and 30km from Lucca. The spacious property provides 284m2 of accommodation over three floors as well as a mezzanine. The basement provides a Cellar, laundry room and wood store. The main entrance on the ground floor leads into an entrance hall, living room, kitchen/dining room, 2 bedrooms and access to the garden with stairs leading to a mezzanine where you find 2 bathrooms. The first floor consists of a lounge, kitchen/dining room, 3 bedrooms, and balcony with magnificent panoramic views. The property sits in 2000m2 of land with 600m2 of garden and 1400m2 of wooded area and has a private enclosed courtyard and also parking for 4 cars. The villa enjoys fantastic panoramic views from the balcony on the first floor and the property is close to the river where you could enjoy fishing or other activities and benefits from gas central heating. This is an excellent investment to provide a B & B or even two separate apartments with independent entrances to both.
Casa Travella was founded in 1987 when Linda & Pietro Travella saw an opportunity to offer Italian property for sale. At this time there were very few companies that offered any property for sale in Italy. Now years later read some of their story.
The company is fronted by Linda Travella and Casa Travella started selling property on Lake Como, where Pietro was born and Linda has worked and lived. The company were able to offer advice on numerous properties and ongoing help with all aspects of the buying process. If a client wants to restore a property, then Casa Travella can source tradesmen and professionals in the area and help with every aspect of the transaction.
When the BBC were looking for someone to speak on BBC Breakfast News about European property Linda was chosen to appear live on the programme. Other TV and radio programmes followed including Radio 5 Live, and ‘I want that House’ with Mark Simpkins, where Linda appeared in 6 episodes, the last one being a live programme from Florida, where an Italian apartment was given away as a prize. Linda appeared for RTE, Irish TV and for Channel 4‘s ‘A Place in the Sun’, where she accompanied Amanda Lamb along the shores of Lake Como by boat, to show her some of the stunning villas, including the one owned by George Clooney.
The Casa Travella team are always pleased to help when clients want to buy or sell a property in Italy. The office is multilingual with English, Italian and Spanish being spoken.
Linda says: ‘I feel proud that we can offer property for sale in many areas of Italy and we are able to give clients independent and professional advice on areas and types of property to suit their budget and needs.’
The Casa Travella team look forward to helping you buy or sell your Italian home.
Casa Travella selling Italian Dream since 1987
A+
A
B
C
D
E
F
G
































